Объявление: Сдаем в аренду офисный блок 127м2
  • Домой Домой
  • Разместить объявление Разместить объявление
  • Регион:
    Все регионы [Поменять]
Домой >> Россия >> Московская область >> Мытищи >> Недвижимость >> Аренда >> Сдам в аренду офис

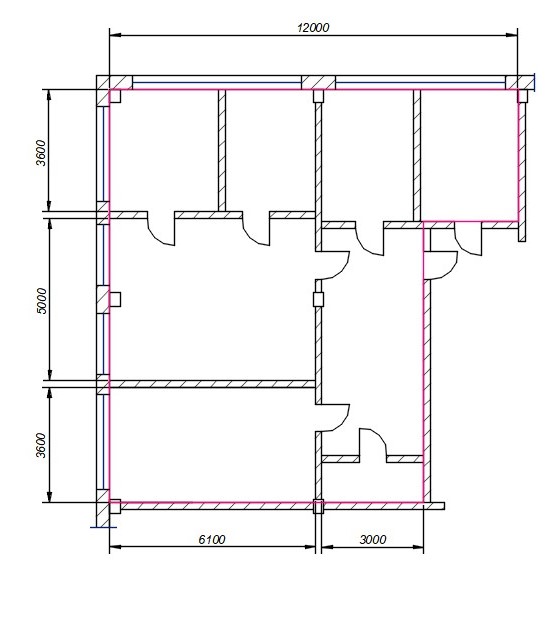
Сдаем в аренду офисный блок 127м2

Светлое, просторное помещение, удобная планировка. Состоит из нескольких кабинетов как для сотрудников, так и для руководства. Имеется ресепшн для секретаря. Есть отдельная комната, которую можно использовать под кабинет для переговоров.
Расположено на 2-м этаже административного кирпичного здания.
Так же предлагаем прямую долгосрочную аренду производственных, складских и офисных помещений в ОСК «Ротопласт»:
• Охраняемая, благоустроенная территория с видеонаблюдением, СКУД;
• Бесплатный въезд;
• Полный набор коммуникаций: электричество, водопровод, канализация, магистральный газ, централизованное отопление, телефон с кодом 495, быстрый интернет по оптико-волоконным каналам;
• Возможность предоставления юридического адреса и регистрации;
• Широкий выбор дополнительных площадей под стоянку, склад или офис.
• Шаговая доступность от ж/д станции «Мытищи» (10 мин. пешком), расстояние от МКАД 3,5 км, удобный подъезд с Ярославского и Осташковского шоссе.

Регион: Мытищи
Телефон: +74955860122

 Приложенные картинки 
Объявление но. 1094150
Срок объявления:
от 10 авг 2017, 16:15
до 31 дек 2025, 16:15
Всего просмотров: 1202
Пометить объявление как:
, , ,

Правовая оговорка: Администрация не несет ответственность за стиль и содержание объявлений. Если предложение, содержащееся в объявлении, нарушает законы РФ, международные законы, либо моральные, этические или общественные нормы, мы просим Вас сообщить нам об этом воспользовавшись ссылкой "Сообщить о нарушении" которая находится в правой колонке на странице объявления. Правила пользования сайтом

Связаться с администрацией сайта