Объявление: Сдается помещение свободного назначения
  • Домой Домой
  • Разместить объявление Разместить объявление
  • Регион:
    Все регионы [Поменять]
Домой >> Россия >> Московская область >> Домодедово >> Недвижимость >> Аренда >> Сдам в аренду помещение

Сдается помещение свободного назначения

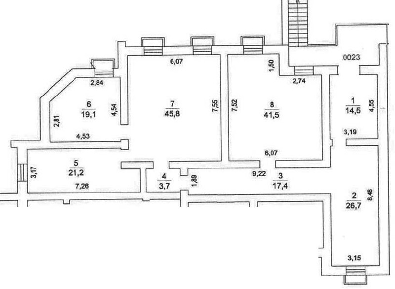
Сдается помещение расположенное в угловом секторе цокольного этажа, на длительный срок (от года), полезная площадь составляет 150 м/кВ, общая площадь 190 м/кВ. Помещение состоит из двух залов по 45 м/кВ (в центре один из них проходной) и трех комнат (расположенных вокруг залов, одна проходная), две из которых по 20 м/кв и одна 28 м/кв. Остальная площадь использована коридорами и входной зоной (комнатой) 15 м/кв. Удобное расположение комнат в помещении позволяет использование помещения под любой бизнес вариант, будь то кафе, магазин или мелкое производство. Помещение сдается от владельца, все вопросы и варианты обсуждаются непосредственно с владельцем. Помещение без ремонта (нулевой цикл), затраты на подготовку помещения под Ваши нужды входят в стоимость аренды (каникулы).

Регион: Домодедово
Телефон: +79166833077

 Приложенные картинки 
Объявление но. 1167948
Срок объявления:
от 09 дек 2017, 13:26
до 02 ноя 2025, 13:26
Всего просмотров: 1075
Пометить объявление как:
, , ,

Правовая оговорка: Администрация не несет ответственность за стиль и содержание объявлений. Если предложение, содержащееся в объявлении, нарушает законы РФ, международные законы, либо моральные, этические или общественные нормы, мы просим Вас сообщить нам об этом воспользовавшись ссылкой "Сообщить о нарушении" которая находится в правой колонке на странице объявления. Правила пользования сайтом

Связаться с администрацией сайта