Объявление: Продается 4-х комнатная квартира с хорошей планировкой. (Распашонка)
  • Домой Домой
  • Разместить объявление Разместить объявление
  • Регион:
    Все регионы [Поменять]
Домой >> Россия >> Московская область >> Люберцы >> Недвижимость >> Продажа недвижимости >> Продам квартиру

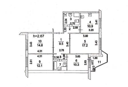
Продается 4-х комнатная квартира с хорошей планировкой. (Распашонка)

Отличное предложение. Продается 4-х комнатная квартира с хорошей планировкой и изолированными комнатами, два санузла. Окна выходят на две стороны (Распашонка). Первичная приватизация по 1/3,все взрослые собственники. Собственность 2008 г. Документы все готовы к сделке. Возможна ипотека и любые предложения по сделке. Альтернатива реально подобрана, квартира в Люберцах, свободная продажа. Готовы выйти на сделку, ну очень быстро!
Показ оперативный.

Регион: Люберцы
Телефон: +79262349727

 Приложенные картинки 

 Карта 
Объявление но. 1803735
Срок объявления:
от 01 июл 2020, 17:36
до 07 ноя 2025, 17:36
Всего просмотров: 891
Пометить объявление как:
, , ,

Правовая оговорка: Администрация не несет ответственность за стиль и содержание объявлений. Если предложение, содержащееся в объявлении, нарушает законы РФ, международные законы, либо моральные, этические или общественные нормы, мы просим Вас сообщить нам об этом воспользовавшись ссылкой "Сообщить о нарушении" которая находится в правой колонке на странице объявления. Правила пользования сайтом

Связаться с администрацией сайта